Intro

Vincent Jiang - Architectural Technologist.

Detail-oriented Architectural Technology graduate (NAIT, 2025) skilled in Revit, AutoCAD, and construction documentation. Experienced in producing permit-ready residential and light commercial drawing sets through academic projects and client-focused design work. Strong understanding of Alberta Building Code, spatial planning, and multidisciplinary coordination.

•Permit-ready drafting: floorplans, elevations, sections, site plans (residential & light commercial).

•Software proficiency: Revit, AutoCAD, SketchUp, Adobe Creative Suite

•Building code knowledge: Alberta Building Code and zoning bylaws

•Construction documentation and redline revisions

•BIM workflows and version control

•Teamwork and project coordination with consultants and clients.

project

RESIDENTIAL

This design explores a four-unit multi-family residence that integrates architecture with the existing natural landscape.

The site contained several mature trees, and rather than removing them, the layout was shaped to embrace and preserve them.

A central courtyard was introduced, creating a shared outdoor space that fosters community while allowing residents to connect with nature.


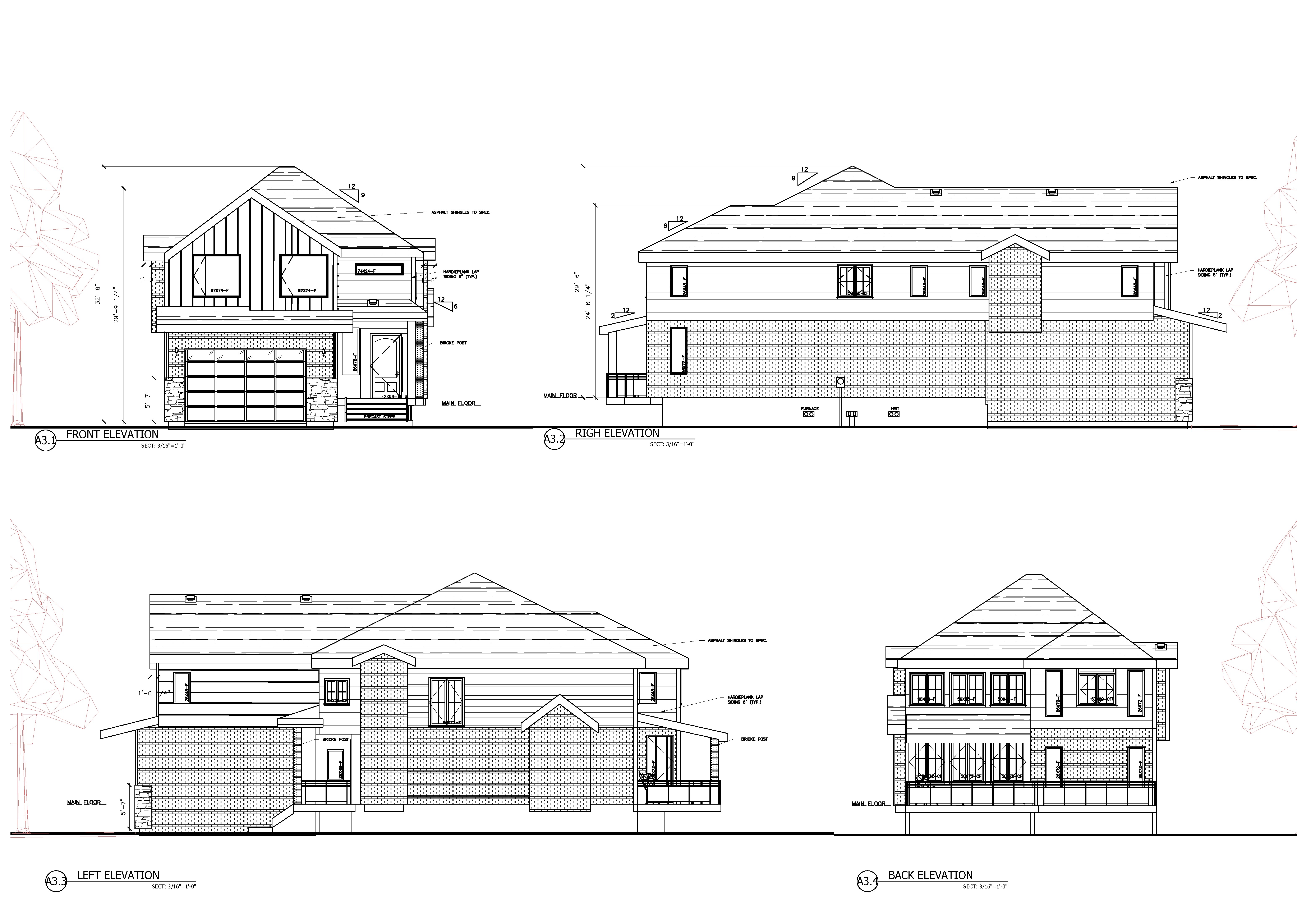
SINGLE-FAMILY HOUSE

This project features a design for two independent residential units, developed using BIM software Revit to enhance the detailing and refinement of residential drawings.

The layout showcases a modern two-story structure with a garage, integrating functional interior spaces with a sleek exterior.

The use of Revit allowed for precise coordination of architectural elements, ensuring a seamless design process and accurate representation of the building’s sections and elevations.

This exercise highlights the application of advanced modeling techniques to optimize residential construction plans.

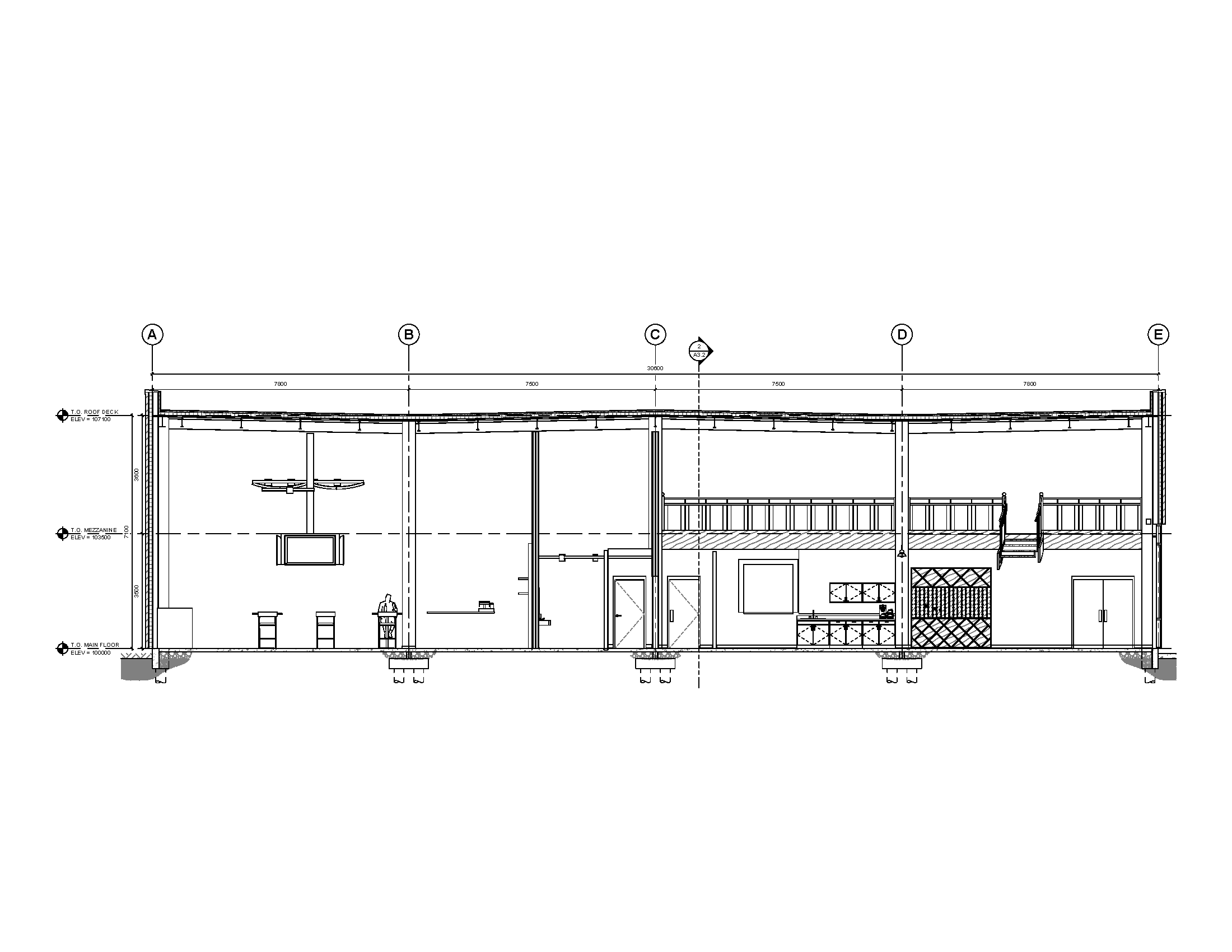
COMMERCIAL

This project features a standalone commercial building, fully developed using BIM software Revit and rendered with Enscape.

It delves deeper into the application of BIM for both interior and exterior architectural design, showcasing the versatility of Revit families in creating detailed and functional spaces.

The design integrates a modern storefront with an inviting interior layout, highlighting advanced modeling techniques and rendering capabilities to enhance the overall project visualization.

Case study

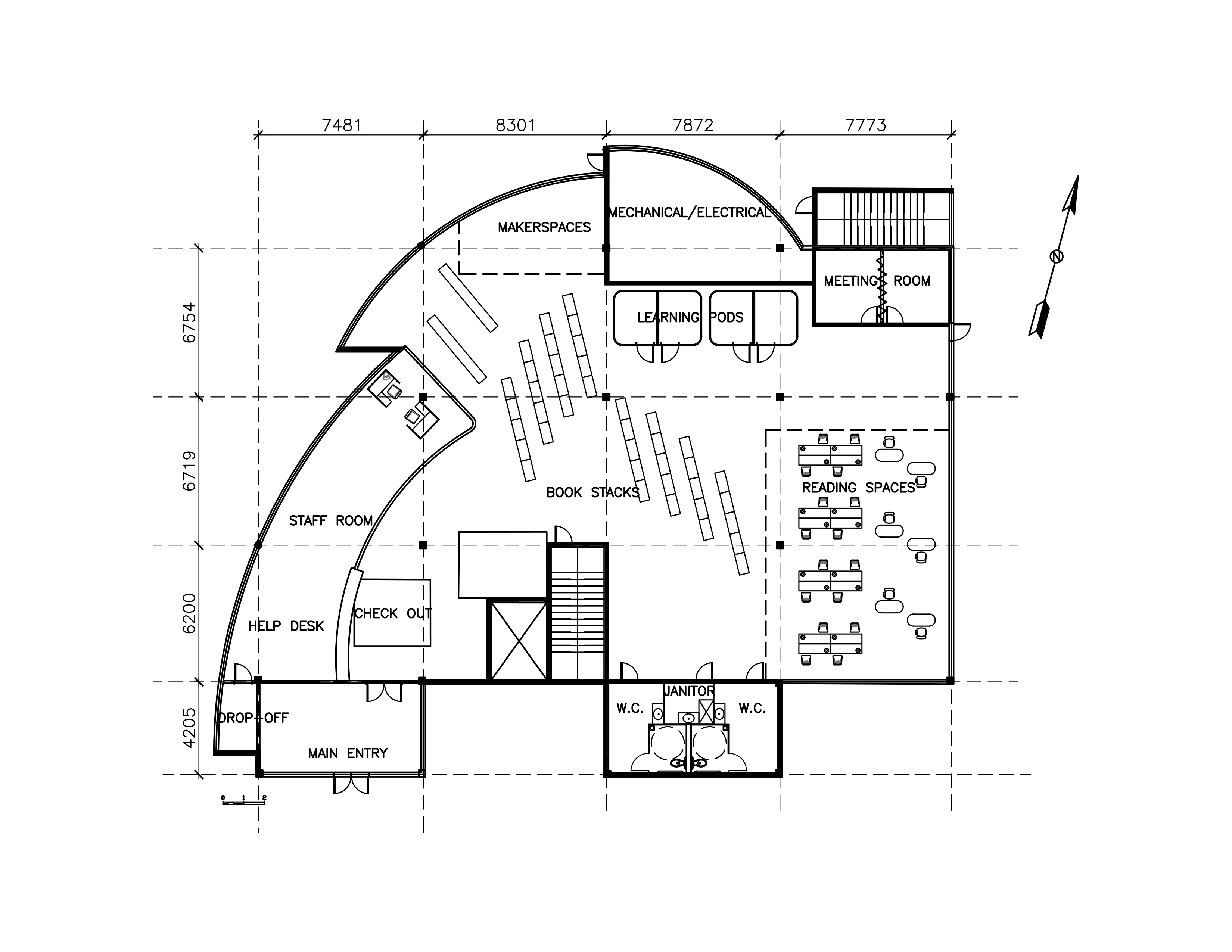
Public Library Design Project

This project focuses on the design of a public library, emphasizing the learning of zoning different areas and understanding the complete architectural design process.

Utilizing AutoCAD and SketchUp, the design explores techniques for effective space allocation and model presentation.

The layout includes distinct zones such as the entry reception, collection areas, and reading spaces, ensuring a functional and inviting environment that meets the needs of the community.

Concept

Public Library Design Project

Public Library Design Project

Public Library Design Project

Public Library Design Project

Public Library Design Project

Public Library Design Project

Public Library Design Project

Elements

Text

This is bold and this is strong. This is italic and this is emphasized. This is superscript text and this is subscript text. This is underlined and this is code: for (;;) { ... }. Finally, this is a link.


Heading Level 2

Heading Level 3

Heading Level 4

Heading Level 5
Heading Level 6

Blockquote

Fringilla nisl. Donec accumsan interdum nisi, quis tincidunt felis sagittis eget tempus euismod. Vestibulum ante ipsum primis in faucibus vestibulum. Blandit adipiscing eu felis iaculis volutpat ac adipiscing accumsan faucibus. Vestibulum ante ipsum primis in faucibus lorem ipsum dolor sit amet nullam adipiscing eu felis.

Preformatted

i = 0;

while (!deck.isInOrder()) {
    print 'Iteration ' + i;
    deck.shuffle();
    i++;
}

print 'It took ' + i + ' iterations to sort the deck.';

Lists

Unordered

  • Dolor pulvinar etiam.
  • Sagittis adipiscing.
  • Felis enim feugiat.

Alternate

  • Dolor pulvinar etiam.
  • Sagittis adipiscing.
  • Felis enim feugiat.

Ordered

  1. Dolor pulvinar etiam.
  2. Etiam vel felis viverra.
  3. Felis enim feugiat.
  4. Dolor pulvinar etiam.
  5. Etiam vel felis lorem.
  6. Felis enim et feugiat.

Icons

Actions

Table

Default

Name Description Price
Item One Ante turpis integer aliquet porttitor. 29.99
Item Two Vis ac commodo adipiscing arcu aliquet. 19.99
Item Three Morbi faucibus arcu accumsan lorem. 29.99
Item Four Vitae integer tempus condimentum. 19.99
Item Five Ante turpis integer aliquet porttitor. 29.99
100.00

Alternate

Name Description Price
Item One Ante turpis integer aliquet porttitor. 29.99
Item Two Vis ac commodo adipiscing arcu aliquet. 19.99
Item Three Morbi faucibus arcu accumsan lorem. 29.99
Item Four Vitae integer tempus condimentum. 19.99
Item Five Ante turpis integer aliquet porttitor. 29.99
100.00

Buttons

  • Disabled
  • Disabled

Form